Frequently Asked Questions

Below you will find information that might help you understand how to find things or learn about information you might need to know about your city or town.

P&D Applying for a Development Permit

8
  • If a restrictive covenant is registered on your Certificate of Title, you are legally required to comply with it. Restrictive covenants may include conditions or limitations that go beyond the requirements of the County’s Land Use Bylaw.

    It is the responsibility of the applicant and/or landowner to review the Certificate of Title and identify any encumbrances, including restrictive covenants, caveats, or easements. If you are unsure whether a restrictive covenant applies to your property or would like to obtain a copy, you can do so through any Alberta registry office.

    Please note that the issuance of a development permit does not supersede, invalidate, or grant approval to contravene any encumbrance registered on the Certificate of Title.

    P&D Applying for a Development Permit
  • Development Permit applications can be obtained and then submitted three ways:

    1. By email – request an application or submit the application to wpermits.
    2. The County office - 243019A Highway 13 (southside of Highway 13 across from Reynolds Alberta Museum entrance)
    3. By regular mail - Box 6960, Wetaskiwin, AB T9A 2G5

    Planning and Development Applications


    P&D Applying for a Development Permit
  • The required documents may vary depending on what the proposed development is; however, majority of development permit applications require:

    • Completed development permit application form, 
    • Drawings (blueprints),
    • Floor plan, 
    • CSA Certification for all Mobile and Modular Homes,
    • Site plan, and 
    • All application fee(s) to be paid in full. 

    Applications are NOT considered complete until ALL of the required information and fees have been provided. An incomplete application form and/or illegible supporting information may result in the application being returned to the applicant. Please refer to the checklist on the back of the application. Fees will be determined after application is considered complete.

    Click here to contact the Planning and Development department for any questions regarding the application or application process. 

    Site Plan Example:

    Site Plan

    Examples of drawings/measurements required: 

    Shed 
    GarageHouse

    Shed Floor Plan R2 (002)

    Garage Floor Plan R2 (002)House Floor Plan R2


    Planning and Development Applications

    P&D Applying for a Development Permit
  • A site plan is a detailed, dimensional plan/drawing showing all buildings/structures on a site and their distance to:

    1. Property lines
    2. Pipelines/Well Heads
    3. Bank breaks

    All setbacks are required to be measured from the property line, not from the road or center of the road. The site plan should also show the square footage of all buildings, and where access into the parcel is (driveway/approach).

    Site Plan Example

    Site Plan

    Planning and Development Applications

    P&D Applying for a Development Permit
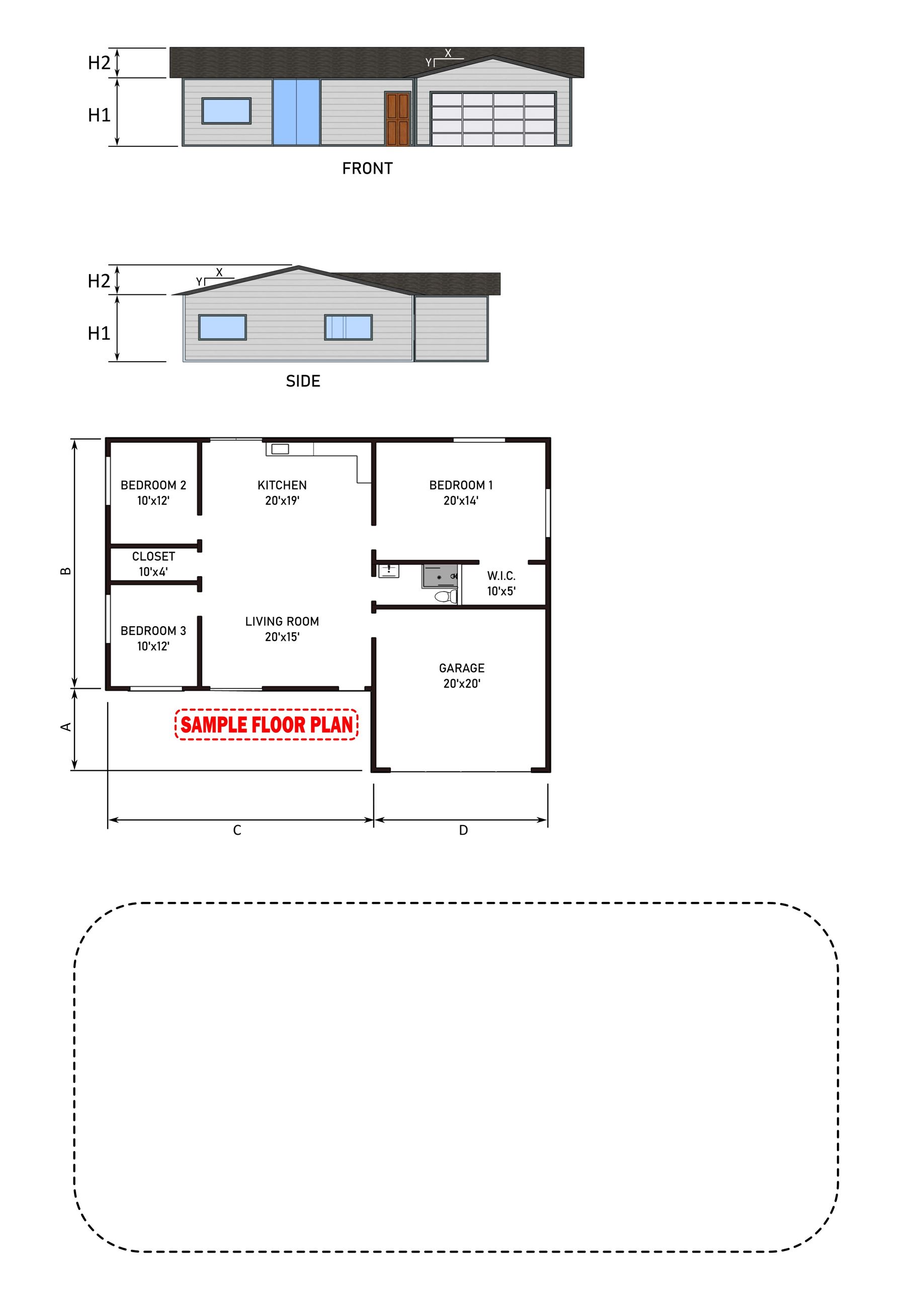
  • The County requires drawings or images of all proposed structures that clearly show the structural appearance and dimensions (width, length, and height). Drawings may be hand-drawn or created digitally. While the County does not require engineered drawings, please note that Superior Safety Codes may require them in order to obtain a building permit. The same requirements apply if the application is for an existing building.

    Examples of drawings/measurements required: 

    Shed 
    GarageHouse

    Shed Floor Plan R2 (002)

    Garage Floor Plan R2 (002)House Floor Plan R2


    Planning and Development Applications

    P&D Applying for a Development Permit
  • The time to process a development permit application can vary, depending on the type of development. 

    If the development is a permitted use and within the required setbacks outlined in the designated property district, it can typically take 5-7 business days. 

    A discretionary development permit application may take up to a month to process for the following reasons:

    • The application may require a referral if your property is subject to one of the reasons listed below, and the referral agencies are given 14 to 21 days to provide the County with any comments.
      • Located within 1.6 km (1 mile) of any Municipal Boundaries ,
      • Located within 800 metres (1/2 mile) from a CFO,
      • Located within 800 metres (1/2 mile) of a pipeline or well head, and
      • Located within 1.6 km (1 mile) of a sour gas pipeline or well head (sour gas is 10 mol/kmol or more)
    • Notice to Adjacent Landowners

    A notice of all discretionary permits are required to be mailed to adjacent landowners, and are given a 21 day appeal period. 


    Planning and Development Applications

    P&D Applying for a Development Permit
  • The Development Permit application fee will depend on the type of development proposed, the zoning of the parcel, and whether or not a variance (relaxation of a setback) is being requested. Please refer to the Fees and Charges Bylaw - Schedule C to view Development Permit fees. 

    Payment of fees may be made by cash, cheque, debit or credit card. For more information visit payment options.

    Planning and Development Applications

    P&D Applying for a Development Permit
  • When a development permit application is received, a quick preliminary review of the application form is done.  If additional information, documents, or fees are required, the applicant will be informed that their application has been deemed incomplete.  An incomplete application form and/or illegible supporting information may result in the application being returned to the applicant.

    Applications are NOT considered complete until ALL of the required information and fees have been provided.

    Planning and Development Applications



    P&D Applying for a Development Permit